Fermă Depozitare PATROL

Proiect de modernizare complexă a unei unități de depozitare cereale, incluzând hale metalice, soproane, instalații de preluare, uscare și camere tehnice. Proiectul implică lucrări de rezistență, infrastructură și suprastructură din beton armat și metal.
Beneficiar: S.C. PATROL SERVICE S.R.L.

Group 75199

Comuna Cefa, Bihor

Group 75202

Construcții Industriale

Group 75201

2024

Detalii Proiect

Adresă Proiect

Com. Cefa, nr. cadastral 50052, județul Bihor

Descriere Generală

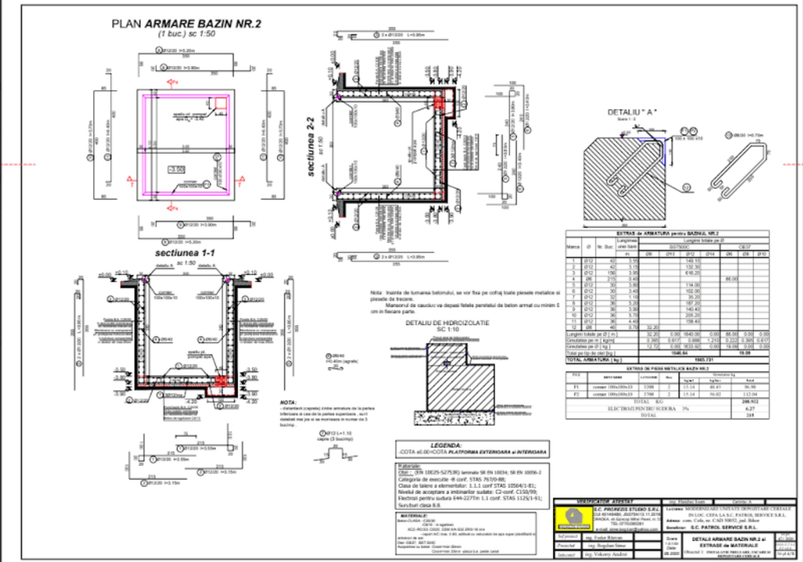
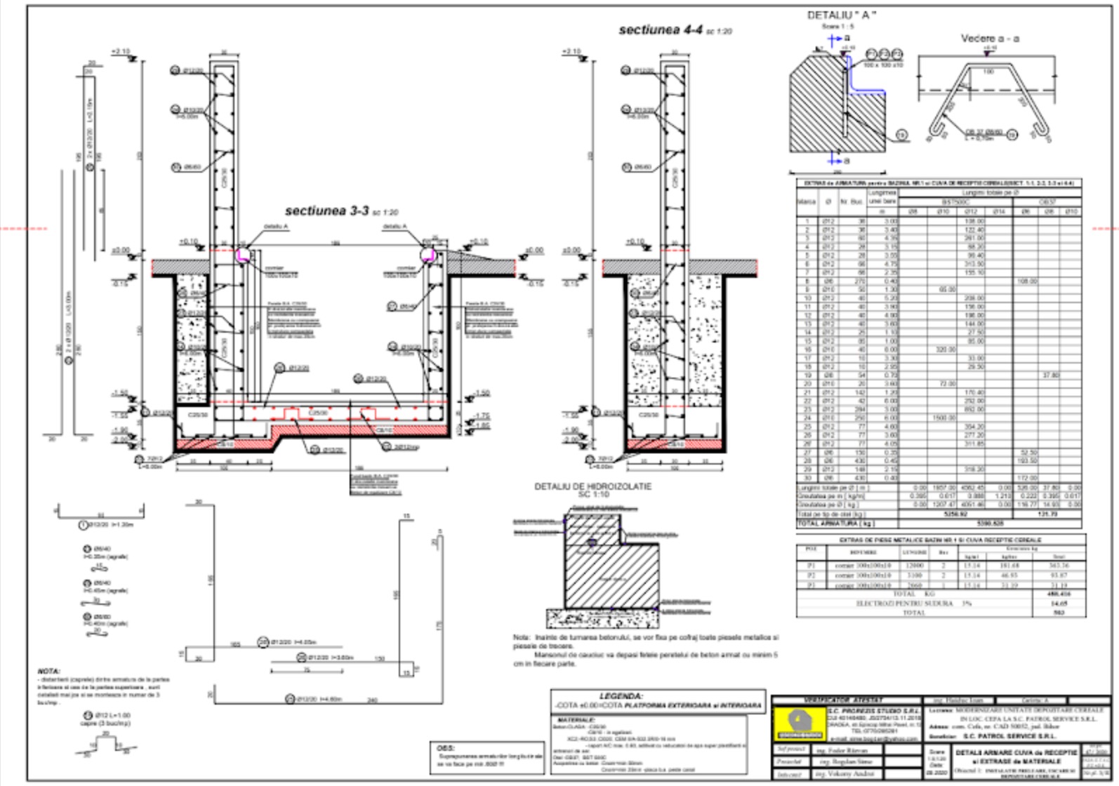
Proiectul presupune modernizarea completă a unei unități de depozitare cereale situată în comuna Cefa, județul Bihor. Lucrările includ construirea a două hale metalice (Hala 1: 29.55m x 178.00m, Hala 2: 29.55m x 42.00m), a unui sopron pentru recepția cerealelor (24.00m x 30.00m), a unei camere de praf, precum și a elementelor conexe: cuve, bazine, canale, radiere și instalații de uscare.

Caracteristici Seismice

Conform normativului P100/2014, construcția se încadrează în zona seismică „F”, cu ag=0.10g și Tc=0.7 sec. Clasa de importanță a construcției este III, iar categoria de importanță este C.

Echipa Proiect

Proiectant:

PROREZIS STUDIO

Arhitect:

CONTEMPORAN

Verificator:

Ing. I. Haiduc

Beneficiar:

 S.C. PATROL SERVICE S.R.L.

Studiu Geotehnic

Executant:

Ciurea Iuliu Lucian

Capacitate portantă:

320 kPa

Adâncime fundare:

1.50 m

Infrastructură

  • Fundații izolate cu bloc de beton și cuzineti

  • Radiere din beton armat pentru bazine și canale

  • Grinzi de fundare din beton armat

  • Balast compactat 20 cm sub pardoseli

  • Trotuar/platformă exterioară perimetrală min. 100 cm

Suprastructură

  • Stâlpi metalici IPE360 / IPE450

  • Ferme metalice și acoperiș metalic

  • Pereți din zidărie 25 cm la camera de praf

  • Planșee din beton armat

Element Clasa Beton Oțel Armare Caracteristici
Fundații, centuri
C16/20
OB37, BST500C
P4, Clasa expunere XC4
Planșee / Suprastructură
C20/25 – C30/37
BST500C
Cl0/20, XC2, XC4

Structură metalică: OL 37 (S275JR), execuție clasa B, suduri continue, protejate anticoroziv

Normative Aplicabile

  • P100-1/2013 – Cod proiectare seism

  • NP112 / EC7 – Fundații

  • CP012-2009 – Proiectare beton

  • Eurocoduri: EC1, EC2, EC7, EC8

Reglementări

  • Legea 10/1995 – Calitatea în construcții

  • Norme protecția muncii și P.S.I.

  • Program de control execuție lucrări

Atenție Specială

Beneficiarul va solicita geotehnicianul pentru identificarea terenului de fundare înaintea turnării betonului.

Cerințe Execuție​

  • Personal calificat și certificat

  • Responsabil tehnic + diriginte de șantier

  • Respectarea NTS și normativelor

  • Tehnologie de execuție obișnuită

Documentația Proiect

Piese Scrise:

  • Borderou – Foaie semnături

  • Referat

  • Memoriu tehnic rezistență

  • Breviar de calcul

  • Program control execuție lucrări

Piese Desenate:

  • Ob.1: Cuve, bazine, radier uscător, cameră de praf

  • Ob.2: Sopron recepție cereale (ferme, fundații, contravantuiri, plan acoperiș)

  • Ob.3: Hală depozitare cereale nr.1 (ferme metalice 29.55m, cadre fronton, contravantuiri)

  • Ob.4: Hală depozitare cereale nr.2 (structură similară cu Ob.3)

Contact

Ai un proiect în plan? Hai să discutăm!
Completează formularul de mai jos și un membru al echipei noastre te va contacta în cel mai scurt timp.

Întrebări frecvente

Ce înseamnă serviciile de proiectare structură de rezistență?

Serviciile de proiectare structură de rezistență se referă la procesul tehnic prin care se determină și se dimensionează elementele de structură ale unei clădiri (fundații, stâlpi, grinzi, planșee etc.) pentru a rezista în condiții de siguranță la toate încărcările (greutate proprie, vânt, zăpadă, cutremur). Aceste servicii sunt esențiale pentru orice tip de construcție, asigurând durabilitatea și stabilitatea în timp.

O proiectare corectă a structurii de rezistență asigură stabilitatea și siguranța construcției în fața solicitărilor mecanice și naturale (cutremure, vânt, zăpadă). O proiectare neconformă poate duce la costuri suplimentare, întârzieri în execuție sau chiar la probleme grave în utilizarea clădirii. De aceea, colaborarea cu o firmă de proiectare autorizată și cu experiență este esențială.

Etapele unui proiect de structură includ:

  1. Analiza documentației arhitecturale și studiului geotehnic;
  2. Modelarea structurală în softuri de specialitate;
  3. Calculul și dimensionarea elementelor structurale;
  4. Elaborarea planurilor și detaliilor de execuție (DTAC + PTh);
  5. Asistență tehnică pe parcursul execuției lucrărilor.

Durata realizării unui proiect depinde de dimensiunea și complexitatea construcției. Pentru o casă unifamilială, proiectul poate fi gata în 7–14 zile lucrătoare. Pentru proiecte mai mari, pot fi necesare 3–6 săptămâni. Termenul exact se stabilește în funcție de documentația disponibilă și de solicitările clientului.

Consultanța tehnică în faza de execuție a structurii de rezistență este esențială pentru a asigura conformitatea lucrărilor cu proiectul și standardele de calitate. Prezența inginerilor specializați permite verificarea modului în care sunt aplicate soluțiile structurale, corectarea eventualelor neconformități și adaptarea detaliilor tehnice în cazul apariției unor situații neprevăzute pe șantier. Astfel, se reduce riscul de erori, se optimizează execuția și se garantează siguranța și durabilitatea structurii.