Fermă Depozitare AGROIND

Proiect pentru realizarea unei unități de recepție, uscare, condiționare și depozitare cereale, compusă din instalații tehnologice, hale metalice, corpuri administrative și cameră de praf, amplasată în comuna Diosig, județul Bihor.

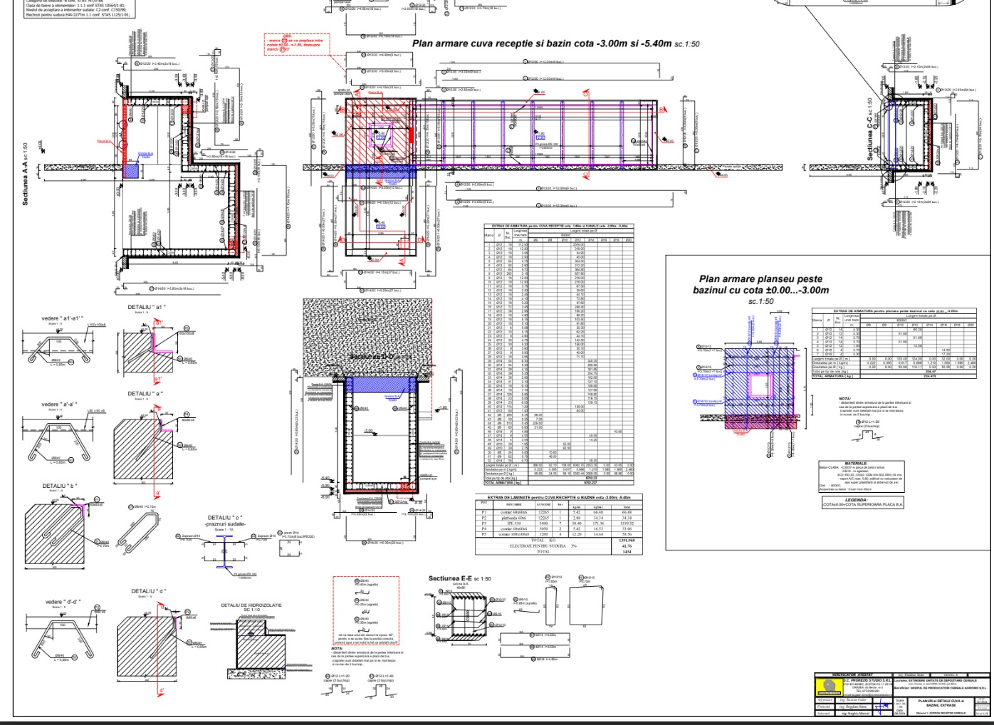
BENEFICIAR: GRUPUL DE PRODUCĂTORI CEREALE AGROIND S.R.L.

Group 75199

Diosig, Bihor

Group 75202

Construcții Industriale

Group 75201

2020

Detalii Proiect

Adresă Proiect

Comuna Diosig, nr. cad. 53896, județul Bihor

Descriere Generală

Construcția propusă, cu regim de înălțime P+Ep, cuprinde o hală cu destinații multiple: producție, administrative, depozitare, parcări auto și circulații auto interioare. Structura de rezistență este realizată din cadre din beton prefabricat (stâlpi și grinzi pentru acoperiș și planșeu). Planseul peste parter este din dale de beton prefabricat legate prin suprabetonare. Închiderile se realizează cu panouri sandwich.

Caracteristici Seismice

Zona seismică: „D” – conform P100-1/2014, ag = 0.20g, Tc = 0.7 sec, Clasa de importanță: III, Categoria de importanță: C

Echipa Proiect

Proiectant:

PROREZIS STUDIO

Verificator:

ing. I. Haiduc

Beneficiar:

GRUPUL DE PRODUCĂTORI CEREALE AGROIND S.R.L.

Studiu Geotehnic

Executant:

Întreprindere Individuală Ciurea Iuliu Lucian

Capacitate portantă:

320 kPa

Adâncime fundare:

-2.00m

Infrastructură

  • fundații continue cu centură soclu din beton armat pentru corpuri din zidărie (administrativ + cameră praf)

  • fundații izolate din beton armat (bloc + cuzinet) pentru stâlpi metalici

  • fundații și radiere din b.a. pentru cuve/canale/bazine și radier uscător

  • strat de balast compactat 20 cm sub pardoseli (ruperea capilarității)

  • trotuar de protecție / platformă exterioară: min. 100 cm

Suprastructură

  • hale: stâlpi metalici IPE360/IPE300 + ferme metalice; acoperiș metalic

  • corpuri din zidărie: sâmburi și centuri din b.a., planșeu din lemn, șarpantă din lemn

Element Clasa Beton Oțel Armare Caracteristici
Fundații / centură soclu / cuzineți
C16/20
OB37 + BST500C
XC2; S3; Cl0.20
Elevații / zidării confinate (centuri/sâmburi)
C16/20 – C20/25
OB37 + BST500C
centuri peste parter / sâmburi
Elemente instalații (cuve/bazine/canale)
C25/30
OB37 + BST500C
radiere + pereți din b.a.
Plăci pe sol
C30/37
OB37 + BST500C
zone tehnologice
Structură metalică acoperiș
S275JR (OL37)
execuție cat. B; suduri continue C2
Ciment
CEM II/A-S 32.5R
A/C max 0.60; aditivat

Normative Aplicabile

  • P100-1/2013 – Proiectare seismică
  • NP112 – Fundații
  • CP012-2009 – Cod proiectare beton
  • STAS 3300/2/85 – Capacitate portantă teren
  • Eurocoduri: EC1, EC2, EC7, EC8

Reglementări

  • Legea 10/1995 – Calitatea în construcții
  • Norme de protecția muncii
  • Norme P.S.I.
  • Program control execuție lucrări

Atenție Specială

Înaintea turnării betonului în fundații, beneficiarul va solicita geotehnicianul pentru identificarea terenului bun de fundare.

Cerințe Execuție​

  • personal calificat și certificat

  • responsabil tehnic cu execuția lucrărilor

  • diriginte de șantier autorizat

  • respectarea normelor NTS

  • tehnologie de execuție obișnuită (fără lucrări speciale)

  • orice modificare se face numai cu acordul proiectantului și avizul verificatorului

Documentația Proiect

Piese Scrise:

  • Borderou – Foaie semnături

  • Referat

  • Memoriu tehnic rezistență

  • Breviar de calcul

  • Program control execuție lucrări

Piese Desenate:

  • Plan fundații și detalii (Ob.1) + extras armătură

  • Sâmburi beton, centuri peste parter, plan planșeu lemn, plan șarpantă lemn (Ob.1)

  • Plan fundații Ob.2 și Ob.6; detalii fundații izolate F1–F3 + carcase buloane; fundații tip F4; fundații continue + armare pereți beton

  • Detalii ferme metalice (24.76 m și 16.21 m), elevații și extrase laminate; contravântuiri CVC/CVP

  • Plan pozare elemente acoperiș + detalii și extrase laminate (Ob.2 și Ob.6)

  • Detalii armare bazin/cuvă + cameră de praf (Ob.3 și Ob.4)

Contact

Ai un proiect în plan? Hai să discutăm!
Completează formularul de mai jos și un membru al echipei noastre te va contacta în cel mai scurt timp.

Întrebări frecvente

Ce înseamnă serviciile de proiectare structură de rezistență?

Serviciile de proiectare structură de rezistență se referă la procesul tehnic prin care se determină și se dimensionează elementele de structură ale unei clădiri (fundații, stâlpi, grinzi, planșee etc.) pentru a rezista în condiții de siguranță la toate încărcările (greutate proprie, vânt, zăpadă, cutremur). Aceste servicii sunt esențiale pentru orice tip de construcție, asigurând durabilitatea și stabilitatea în timp.

O proiectare corectă a structurii de rezistență asigură stabilitatea și siguranța construcției în fața solicitărilor mecanice și naturale (cutremure, vânt, zăpadă). O proiectare neconformă poate duce la costuri suplimentare, întârzieri în execuție sau chiar la probleme grave în utilizarea clădirii. De aceea, colaborarea cu o firmă de proiectare autorizată și cu experiență este esențială.

Etapele unui proiect de structură includ:

  1. Analiza documentației arhitecturale și studiului geotehnic;
  2. Modelarea structurală în softuri de specialitate;
  3. Calculul și dimensionarea elementelor structurale;
  4. Elaborarea planurilor și detaliilor de execuție (DTAC + PTh);
  5. Asistență tehnică pe parcursul execuției lucrărilor.

Durata realizării unui proiect depinde de dimensiunea și complexitatea construcției. Pentru o casă unifamilială, proiectul poate fi gata în 7–14 zile lucrătoare. Pentru proiecte mai mari, pot fi necesare 3–6 săptămâni. Termenul exact se stabilește în funcție de documentația disponibilă și de solicitările clientului.

Consultanța tehnică în faza de execuție a structurii de rezistență este esențială pentru a asigura conformitatea lucrărilor cu proiectul și standardele de calitate. Prezența inginerilor specializați permite verificarea modului în care sunt aplicate soluțiile structurale, corectarea eventualelor neconformități și adaptarea detaliilor tehnice în cazul apariției unor situații neprevăzute pe șantier. Astfel, se reduce riscul de erori, se optimizează execuția și se garantează siguranța și durabilitatea structurii.