FERMA GĂINI OUĂTOARE OdT1 GURBEDIU

Proiect pentru realizarea unei hale industriale destinate creșterii găinilor ouătoare, parte din extinderea complexului agricol din comuna Tinca, sat Gurbediu, județul Bihor
Beneficiar: S.C. OUL DE TINCA S.R.L.

Group 75199

Tinca, Bihor

Group 75202

Construcții Industriale

Group 75201

2024-2025

Detalii Proiect

Adresă Proiect

Com. Tinca, sat Gurbediu, nr. cad. 57784, jud. Bihor

Descriere Generală

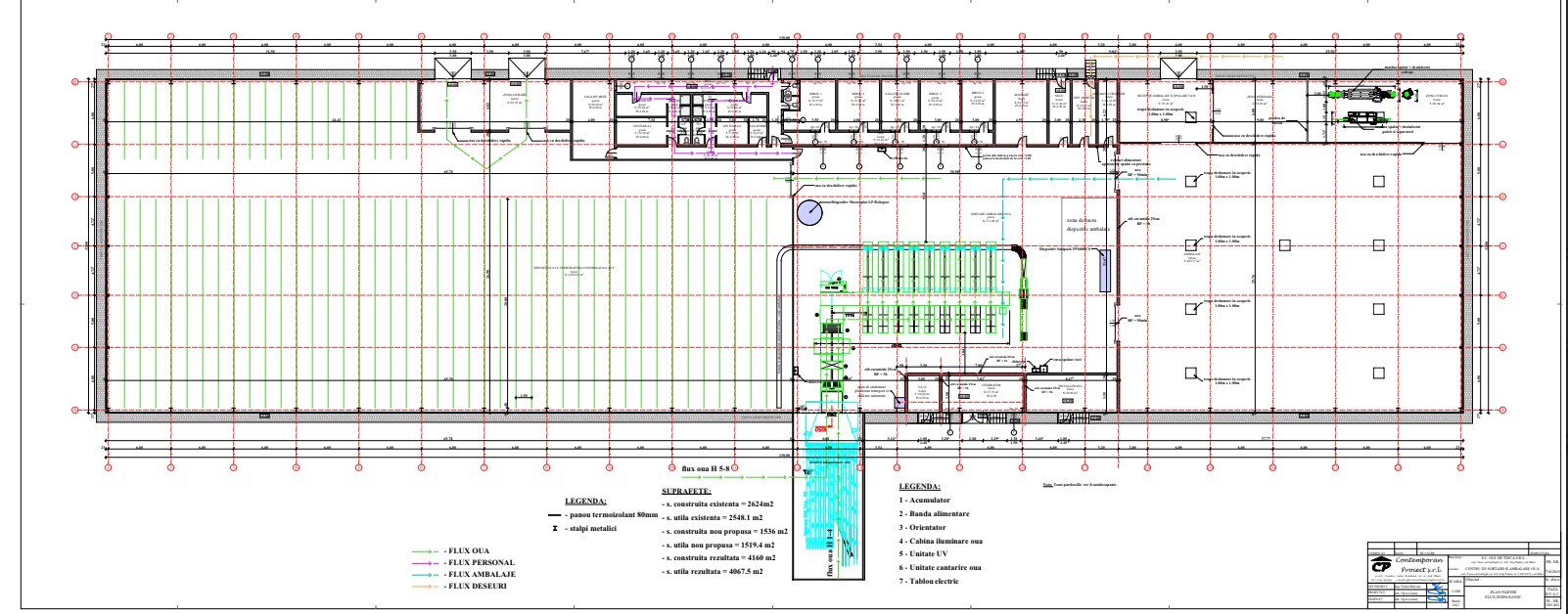
Proiectul prevede construirea unei hale industriale pentru creșterea găinilor ouătoare, cu spații interioare dedicate adăpostirii efectivelor, zonelor de colectare și manipulare a ouălor, precum și spații tehnice și platforme betonate exterioare pentru circulații și utilaje.

Structura de rezistență este metalică, alcătuită din stâlpi Europrofile HEA 400 / 360 / 320 și grinzi IPE 450, acoperită cu panouri termoizolante tip sandwich.
Fundațiile sunt izolate din beton armat, prevăzute cu cuzineți și grinzi perimetrale de legătură.
Pardoselile sunt realizate din placă armată turnată monolit pe strat de pietriș compactat, iar pe contur se execută trotuar de protecție de minimum 1,00 m lățime.

Caracteristici Seismice

Construcția se află în Zona seismică: „F” – conform P100-1/2013, ag = 0.10g, Tc = 0.7 sec, Clasa de importanță: III, Categoria de importanță: C

Echipa Proiect

Proiectant:

PROREZIS STUDIO

Arhitect:

Verificator:

Ing. I. Haiduc

Beneficiar:

S.C. OUL DE TINCA S.R.L.

Studiu Geotehnic

Executant:

I.I. Ciura Iuliu Lucian

Capacitate portantă:

300 – 320 kPa

Adâncime fundare:

-1.50m

Infrastructură

  • Fundații izolate din beton armat, cu bloc de fundare și cuzinet.

  • Grinzi de legătură perimetrale și centuri soclu armate.

  • Placă de beton armat peste strat de rupere a capilarității (pietriș 15 cm).

  • Trotuar perimetral de protecție min. 100 cm.

Suprastructură

  • Stâlpi metalici HEA 400 / 360 / 320

  • Grinzi metalice IPE 450

  • Acoperiș metalic pe structură tip panouri sandwich 8 cm

  • Piese metalice din oțel OL S275JR, categoria execuție B, suduri electrice continue, nivel acceptare C2

  • Elemente vopsite cu strat anticoroziv

  • Șuruburi și piulițe clasa 8.8 / 10.9

Element Clasa Beton Oțel Armare Caracteristici
Fundații / Cuzineți
C25/30
B500C
Beton armat XC2–XC4
Placă pe sol
C25/30
B500C
Clasă de expunere RO; S3; Cl020
Structură metalică
S275JR
HEA / IPE conform detaliilor
Ciment
CEM II/A-S 32.5R
Raport A/C max. 0.60; aditivat superplastifianți

Normative Aplicabile

  • P100-1/2013 – Cod de proiectare seismică

  • NP112 / EC7 – Proiectarea fundațiilor

  • CP012-2009 – Cod de proiectare a betonului

  • SR EN 1991-1-1 / 3 / 4 / 6 – Eurocod 1 (acțiuni generale, vânt, zăpadă, execuție)

  • SR EN 1992-1-1 – Eurocod 2 (structuri din beton)

  • SR EN 1997-1 – Eurocod 7 (geotehnică)

  • SR EN 1998-1 / 3 – Eurocod 8 (acțiuni seismice)

Elemente de Calcul

  • Presiune convențională: 310 kPa

  • Presiune corectată: 280.5 kPa

  • Presiune efectivă max.: 150 kPa

  • Adâncime fundare: 1.50 m sub cota terenului natural

  • Software utilizat: Axis VM 7.0

Încărcări principale:

  • Panouri sandwich 8 cm – 12 daN/mp

  • Profile 60×40×2 – 3.01 daN/mp

  • Zăpadă – 96 daN/mp × 1.5 = 144 daN/mp

  • Vânt – qp(z)=1.15 kN/m² (categoria teren II – zona Tinca)

  • Acoperiș cu două pante de 17°

Execuție și Control

  • Identificarea stratului bun de fundare se va face de către geotehnician înaintea turnării betonului.

  • Lucrările se vor executa cu personal calificat, sub supravegherea responsabilului tehnic și a dirigintelui de șantier autorizați conform Legii 10/1995.

  • Se vor respecta toate normele NTS, P.S.I. și prevederile privind calitatea în construcții.

  • Modificările față de proiect se pot realiza doar cu acordul proiectantului și avizul verificatorului atestat.

  • Controlul calității lucrărilor se va efectua pe baza Programului pentru Controlul Execuției, conform reglementărilor legale în vigoare.

Contact

Ai un proiect în plan? Hai să discutăm!
Completează formularul de mai jos și un membru al echipei noastre te va contacta în cel mai scurt timp.

Întrebări frecvente

Ce înseamnă serviciile de proiectare structură de rezistență?

Serviciile de proiectare structură de rezistență se referă la procesul tehnic prin care se determină și se dimensionează elementele de structură ale unei clădiri (fundații, stâlpi, grinzi, planșee etc.) pentru a rezista în condiții de siguranță la toate încărcările (greutate proprie, vânt, zăpadă, cutremur). Aceste servicii sunt esențiale pentru orice tip de construcție, asigurând durabilitatea și stabilitatea în timp.

O proiectare corectă a structurii de rezistență asigură stabilitatea și siguranța construcției în fața solicitărilor mecanice și naturale (cutremure, vânt, zăpadă). O proiectare neconformă poate duce la costuri suplimentare, întârzieri în execuție sau chiar la probleme grave în utilizarea clădirii. De aceea, colaborarea cu o firmă de proiectare autorizată și cu experiență este esențială.

Etapele unui proiect de structură includ:

  1. Analiza documentației arhitecturale și studiului geotehnic;
  2. Modelarea structurală în softuri de specialitate;
  3. Calculul și dimensionarea elementelor structurale;
  4. Elaborarea planurilor și detaliilor de execuție (DTAC + PTh);
  5. Asistență tehnică pe parcursul execuției lucrărilor.

Durata realizării unui proiect depinde de dimensiunea și complexitatea construcției. Pentru o casă unifamilială, proiectul poate fi gata în 7–14 zile lucrătoare. Pentru proiecte mai mari, pot fi necesare 3–6 săptămâni. Termenul exact se stabilește în funcție de documentația disponibilă și de solicitările clientului.

Consultanța tehnică în faza de execuție a structurii de rezistență este esențială pentru a asigura conformitatea lucrărilor cu proiectul și standardele de calitate. Prezența inginerilor specializați permite verificarea modului în care sunt aplicate soluțiile structurale, corectarea eventualelor neconformități și adaptarea detaliilor tehnice în cazul apariției unor situații neprevăzute pe șantier. Astfel, se reduce riscul de erori, se optimizează execuția și se garantează siguranța și durabilitatea structurii.