FERMA PUI GURBEDIU

Proiect pentru construirea unei hale de procesare și depozitare ouă, realizat în comuna Tinca, sat Gurbediu, județul Bihor.
Beneficiar: S.C. OUL DE TINCA S.R.L.

Group 75199

Tinca, Bihor

Group 75202

Construcții Industriale

Group 75201

2025-2026

Detalii Proiect

Adresă Proiect

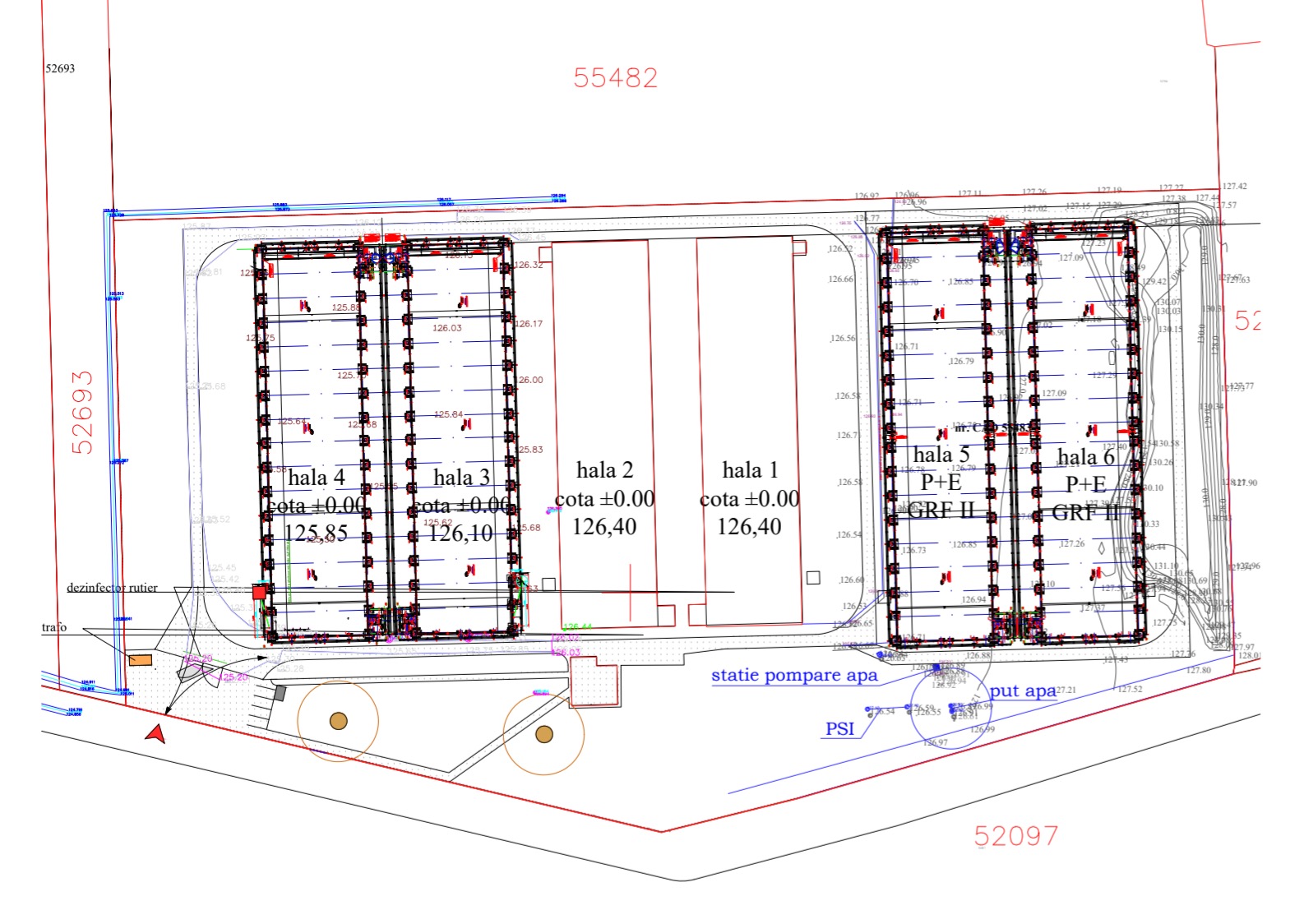
Comuna Tinca, sat Gurbediu, nr. cad. 57784, jud. Bihor

Descriere Generală

Proiectul are ca obiect construirea unei hale industriale moderne pentru procesarea și depozitarea ouălor, parte a infrastructurii tehnologice a fermei de păsări Gurbediu, județul Bihor.

Construcția propusă este concepută cu structură metalică și fundare pe blocuri și cuzineți din beton armat, asigurând stabilitate, durabilitate și respectarea normativelor tehnice în vigoare.
Hala este împărțită funcțional în două zone principale:

Caracteristici Seismice

Construcția se află în Zonă seismică: F (conform P100-1/2013), ag = 0.10g, Tc = 0.7 sec, Clasa de importanță: III, Categoria de importanță: C

Echipa Proiect

Proiectant:

PROREZIS STUDIO

Arhitect:

Verificator:

Ing. I. Haiduc

Beneficiar:

S.C. OUL DE TINCA S.R.L.

Studiu Geotehnic

Executant:

I.I. Ciura Iuliu Lucian

Capacitate portantă:

310-330 kPa

Adâncime fundare:

1.30m

Infrastructură

  • Fundații: izolate, din beton armat C25/30, prevăzute cu bloc și cuzinet; grinzi perimetrale de legătură.

  • Suprastructură: cadru metalic rigid din profile HEA și IPE; acoperiș în două ape, panta 17°.

  • Pereți exteriori: panouri sandwich termoizolante 8 cm.

  • Acoperiș: panouri sandwich pe grinzi metalice Z200.

  • Pardoseală: beton armat C25/30, placă pe strat de pietriș compactat.

  • Rampa de andocare și platformele: beton armat cu armare corespunzătoare.

  • Compartimentări interioare: profile metalice ușoare și panouri termoizolante.

Suprastructură

Încărcări considerate:

  • Panouri sandwich 8 cm: 12 daN/mp

  • Pane metalice Z200: 3.01 daN/mp

  • Total acoperiș: 15.01 daN/mp

  • Zăpadă: 96 daN/mp × 1.5 = 144 daN/mp

  • Vânt: qp(z) = 1.15 kN/m² (zona Tinca, categoria teren II)

Presiuni la fundare:

  • p_conv = 320 kPa

  • p_corectat = 342.4 kPa

  • p_max efectiv = 200 kPa

  • Adâncime fundare = 2.00 m

Element Material Clasă / Tip Observații
Fundații / Cuzineți
Beton armat
C25/30
XC2; XC4; RO; S3
Centuri, placă pe sol
Beton armat
C25/30
Aditivat cu plastifianți
Armături
Oțel beton
B500C
Structură metalică
Oțel laminat
S275JR
Categoria B, suduri C2
Elemente de fixare
Șuruburi și piulițe
Clasa 8.8
Protejate anticoroziv

Normative Aplicabile

  • P100-1/2013 – Cod de proiectare seismică

  • NP112 / EC7 – Fundații

  • CP012-2009 – Cod de proiectare a betonului

  • SR EN 1991-1-1 / 3 / 4 / 6 – Acțiuni generale, zăpadă, vânt

  • SR EN 1992-1-1 – Structuri din beton

  • SR EN 1997-1 – Proiectare geotehnică

  • SR EN 1998-1 / 3 – Acțiuni seismice și consolidare

Execuție și Control

  • Beneficiarul va solicita geotehnicianul înaintea turnării betonului în fundații;

  • Lucrările se vor executa cu personal calificat, sub supravegherea responsabilului tehnic cu execuția și a dirigintelui de șantier;

  • Se vor respecta prevederile Legii 10/1995 privind calitatea în construcții;

  • Controlul execuției se face conform Programului pentru Controlul Calității Lucrărilor;

  • Se vor aplica toate normele de protecție a muncii și P.S.I. specifice fazelor de lucru.

Contact

Ai un proiect în plan? Hai să discutăm!
Completează formularul de mai jos și un membru al echipei noastre te va contacta în cel mai scurt timp.

Întrebări frecvente

Ce înseamnă serviciile de proiectare structură de rezistență?

Serviciile de proiectare structură de rezistență se referă la procesul tehnic prin care se determină și se dimensionează elementele de structură ale unei clădiri (fundații, stâlpi, grinzi, planșee etc.) pentru a rezista în condiții de siguranță la toate încărcările (greutate proprie, vânt, zăpadă, cutremur). Aceste servicii sunt esențiale pentru orice tip de construcție, asigurând durabilitatea și stabilitatea în timp.

O proiectare corectă a structurii de rezistență asigură stabilitatea și siguranța construcției în fața solicitărilor mecanice și naturale (cutremure, vânt, zăpadă). O proiectare neconformă poate duce la costuri suplimentare, întârzieri în execuție sau chiar la probleme grave în utilizarea clădirii. De aceea, colaborarea cu o firmă de proiectare autorizată și cu experiență este esențială.

Etapele unui proiect de structură includ:

  1. Analiza documentației arhitecturale și studiului geotehnic;
  2. Modelarea structurală în softuri de specialitate;
  3. Calculul și dimensionarea elementelor structurale;
  4. Elaborarea planurilor și detaliilor de execuție (DTAC + PTh);
  5. Asistență tehnică pe parcursul execuției lucrărilor.

Durata realizării unui proiect depinde de dimensiunea și complexitatea construcției. Pentru o casă unifamilială, proiectul poate fi gata în 7–14 zile lucrătoare. Pentru proiecte mai mari, pot fi necesare 3–6 săptămâni. Termenul exact se stabilește în funcție de documentația disponibilă și de solicitările clientului.

Consultanța tehnică în faza de execuție a structurii de rezistență este esențială pentru a asigura conformitatea lucrărilor cu proiectul și standardele de calitate. Prezența inginerilor specializați permite verificarea modului în care sunt aplicate soluțiile structurale, corectarea eventualelor neconformități și adaptarea detaliilor tehnice în cazul apariției unor situații neprevăzute pe șantier. Astfel, se reduce riscul de erori, se optimizează execuția și se garantează siguranța și durabilitatea structurii.