Hală Aurel & Dorina INT Transport

Proiect complet pentru construire hală cu funcțiuni administrative, logistică, atelier auto, parcaj auto interioare, racord utilități și împrejmuire teren, în Oradea. Structură tehnică modernă, adaptată cerințelor funcționale complexe.
Beneficiar: S.C. AUREL & DORINA TRANS S.R.L.

Group 75199

Oradea, Bihor

Group 75202

Construcții Industriale

Group 75201

2021

Detalii Proiect

Adresă Proiect

Calea Borșului nr. 31D, nr. cadastral 193719, Oradea, județul Bihor

Descriere Generală

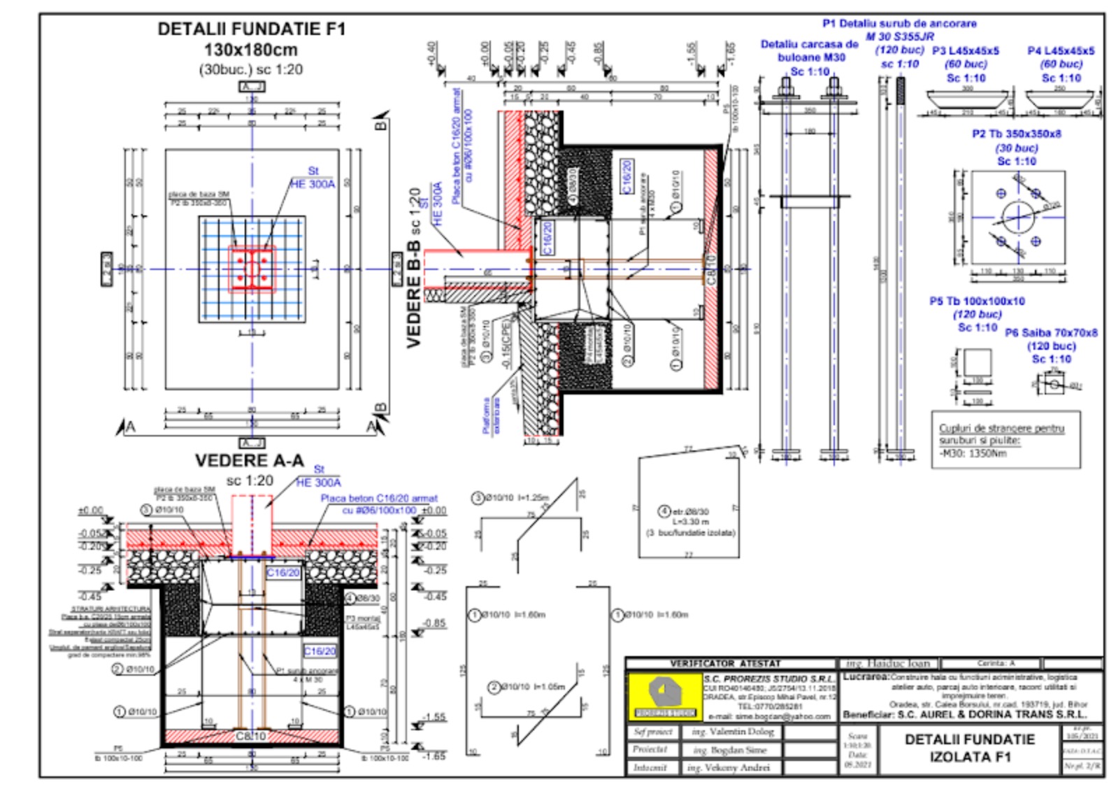
Construcția cuprinde o hală metalică cu funcțiuni administrative, logistică și atelier auto, precum și terenuri de sport, bazine, instalații tehnice și împrejmuire. Structura halei este metalică, formată din stâlpi HEA300/340 și grinzi IPE500/220, pe fundații izolate din beton armat. Terenurile sportive sunt echipate cu stâlpi metalici și închideri din plasă, iar bazinele sunt realizate integral din elemente din beton armat.

Caracteristici Seismice

Zona seismică „E”, ag=0.15g, Tc=0.7sec. Clasa de importanță: III Categoria de importanță: C

Echipa Proiect

Proiectant:

PROREZIS STUDIO

Arhitect:

Cofido

Verificator:

Ing. I. Haiduc

Beneficiar:

S.C. AUREL & DORINA TRANS S.R.L.

Studiu Geotehnic

Executant:

I.I. Ciura Iuliu Lucian

Capacitate portantă:

292 kPa

Adâncime fundare:

-2.00m

Fundații

  • Fundații izolate cu bloc de fundare și cuzinet armat
  • Grinzi de fundare din beton armat între stâlpi
  • Adâncime fundare: -2.00m
  • Trotuar protecție perimetral: 100 cm

Suprastructură

  • Stâlpi HEA300/340 și grinzi IPE 500/220, acoperiș IPE360
  • Construcții secundare cu stâlpi tubulari și plase zincate
  • Pereți, planșee, radier și bazine din beton armat
Element Clasa Beton Oțel Armare Caracteristici
Egalizare
C8/10
Clasa expunere 1a
Fundații
C16/20
OB37
Impermeabilitate P4
Suprastructură
C30/37
BST500C, PC52
XC2, XC4; RO; S3; Cl020

Observații: CEM II/A-S32.5R/0-16 mm, raport A/C max. 0.60, aditivat cu reducători de apă super plastifianți și antrenori de aer.

Normative Aplicabile

  • P100-1/2013 – Cod de proiectare seismică
  • NP112 – „Fundații”, EC7
  • CP012/2009 – Cod de proiectare a betonului
  • STAS 3300/2/85 – Capacitate portantă teren

Reglementări

  • Legea 10/1995 – Calitatea în construcții
  • Norme de protecția muncii și P.S.I.
  • Program control execuție lucrări

Atenție Specială

Înaintea turnării betonului în fundații, beneficiarul va solicita geotehnicianul pentru identificarea terenului bun de fundare.

Cerințe Execuție​

  • Personal calificat și certificat
  • Diriginte de șantier autorizat
  • RTE lucrări
  • Respectarea normelor tehnice specifice în vigoare
  • Atenție Specială: Înaintea turnării betonului în fundații, beneficiarul va solicita geotehnicianul pentru identificarea terenului bun de fundare.

Documentația Proiect

Piese Scrise:

  • Borderou – Foaie semnături
  • Referat
  • Memoriu tehnic rezistență
  • Breviar de calcul
  • Program control execuție

Piese Desenate:

  • Planuri infrastructură: fundații F1-F6, grinzi, carcase, extrase
  • Planuri suprastructură: cadre metalice fronton/câmp, grinzi, contravântuiri, planșee
  • Planuri speciale: scări, acoperiș, planșeu compus, centralizatoare laminate

Contact

Ai un proiect în plan? Hai să discutăm!
Completează formularul de mai jos și un membru al echipei noastre te va contacta în cel mai scurt timp.

Întrebări frecvente

Ce înseamnă serviciile de proiectare structură de rezistență?

Serviciile de proiectare structură de rezistență se referă la procesul tehnic prin care se determină și se dimensionează elementele de structură ale unei clădiri (fundații, stâlpi, grinzi, planșee etc.) pentru a rezista în condiții de siguranță la toate încărcările (greutate proprie, vânt, zăpadă, cutremur). Aceste servicii sunt esențiale pentru orice tip de construcție, asigurând durabilitatea și stabilitatea în timp.

O proiectare corectă a structurii de rezistență asigură stabilitatea și siguranța construcției în fața solicitărilor mecanice și naturale (cutremure, vânt, zăpadă). O proiectare neconformă poate duce la costuri suplimentare, întârzieri în execuție sau chiar la probleme grave în utilizarea clădirii. De aceea, colaborarea cu o firmă de proiectare autorizată și cu experiență este esențială.

Etapele unui proiect de structură includ:

  1. Analiza documentației arhitecturale și studiului geotehnic;
  2. Modelarea structurală în softuri de specialitate;
  3. Calculul și dimensionarea elementelor structurale;
  4. Elaborarea planurilor și detaliilor de execuție (DTAC + PTh);
  5. Asistență tehnică pe parcursul execuției lucrărilor.

Durata realizării unui proiect depinde de dimensiunea și complexitatea construcției. Pentru o casă unifamilială, proiectul poate fi gata în 7–14 zile lucrătoare. Pentru proiecte mai mari, pot fi necesare 3–6 săptămâni. Termenul exact se stabilește în funcție de documentația disponibilă și de solicitările clientului.

Consultanța tehnică în faza de execuție a structurii de rezistență este esențială pentru a asigura conformitatea lucrărilor cu proiectul și standardele de calitate. Prezența inginerilor specializați permite verificarea modului în care sunt aplicate soluțiile structurale, corectarea eventualelor neconformități și adaptarea detaliilor tehnice în cazul apariției unor situații neprevăzute pe șantier. Astfel, se reduce riscul de erori, se optimizează execuția și se garantează siguranța și durabilitatea structurii.