FABRICĂ DE PROCESARE ȘI DEPOZITARE OUĂ GURBEDIU

Proiect pentru realizarea unei hale industriale destinate procesării și depozitării ouălor, cu structură mixtă metal-beton, amplasată în comuna Tinca, sat Gurbediu, județul Bihor.
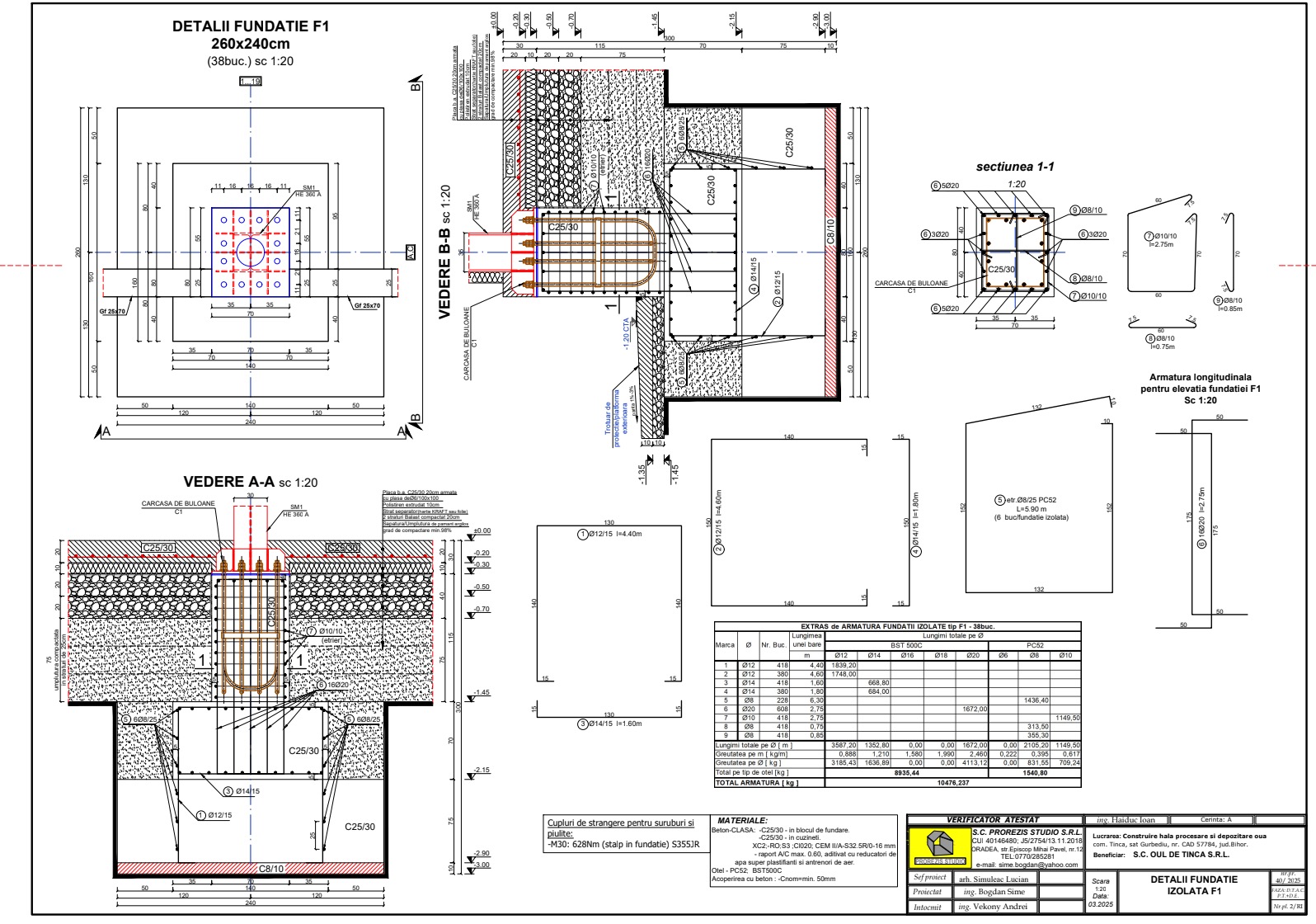
Beneficiar: S.C. OUL DE TINCA S.R.L.

Group 75199

Tinca, Bihor

Group 75202

Construcții Industriale

Group 75201

2024-2025

Detalii Proiect

Adresă Proiect

Com. Tinca, sat Gurbediu, nr. cad. 57784, jud. Bihor

Descriere Generală

Lucrarea constă în construirea unei hale industriale pentru procesarea și depozitarea ouălor, prevăzută cu spații de producție, zone de depozitare, rampă de andocare și terasă exterioară betonată.
Structura de rezistență este metalică, formată din stâlpi Europrofile HEA 360/340/300 și grinzi IPE 450, iar fundațiile sunt izolate din beton armat, cu cuzineți și grinzi perimetrale de legătură.

Caracteristici Seismice

Construcția se află în Zonă seismică: „F” – conform P100-1/2013, ag = 0.10g, Tc = 0.7 sec, Clasa de importanță: III, Categoria de importanță: C

Echipa Proiect

Proiectant:

PROREZIS STUDIO

Arhitect:

Verificator:

Ing. I. Haiduc

Beneficiar:

S.C. OUL DE TINCA S.R.L.

Studiu Geotehnic

Executant:

I.I. Ciura Iuliu Lucian

Capacitate portantă:

310 – 330 kPa

Adâncime fundare:

-1.50m

Infrastructură

  • Fundații izolate cu bloc de fundare din beton armat

  • Cuzineți și grinzi de fundare perimetrale

  • Placă pe sol din beton armat

  • Strat de pietriș de 15 cm sub pardoseli (rupere capilaritate)

  • Trotuar perimetral de protecție min. 100 cm

Suprastructură

  • Stâlpi metalici HEA 360 / 340 / 300

  • Grinzi metalice IPE 450

  • Acoperiș metalic pe structură din panouri sandwich 8 cm

  • Piese metalice OL S275JR, categoria de execuție B

  • Suduri continue electrice, nivel acceptare C2

  • Piese vopsite cu protecție anticorozivă

  • Șuruburi și piulițe clasa 8.8

Element Clasa Beton Oțel Armare Caracteristici
Fundații / Cuzineți
C25/30
B500C
Beton armat XC2–XC4
Placă pe sol
C25/30
B500C
Clasă de expunere RO; S3; Cl020
Structură metalică
S275JR
HEA / IPE conform detaliilor
Ciment
CEM II/A-S 32.5R
Raport A/C max. 0.60; aditivat superplastifianți

Normative Aplicabile

  • P100-1/2013 – Cod de proiectare seismică

  • NP112 / EC7 – Proiectarea fundațiilor

  • CP012-2009 – Cod de proiectare a betonului

  • SR EN 1991-1-1 / 3 / 4 / 6 – Eurocod 1 (acțiuni generale, vânt, zăpadă)

  • SR EN 1992-1-1 – Eurocod 2 (structuri din beton)

  • SR EN 1997-1 – Eurocod 7 (geotehnică)

  • SR EN 1998-1 / 3 – Eurocod 8 (acțiuni seismice)

Elemente de Calcul

  • Presiune convențională: 320 kPa

  • Presiune corectată: 342.4 kPa

  • Presiune efectivă max.: 200 kPa

  • Adâncime fundare: 2.00 m sub cota terenului natural

  • Software utilizat: Axis X5

Încărcări principale:

  • Panouri sandwich 8 cm – 12 daN/mp

  • Pane Z200 – 3.01 daN/mp

  • Zăpadă – 96 daN/mp × 1.5 = 144 daN/mp

  • Vânt – qp(z)=1.15 kN/m² (categoria teren II, zona Tinca)

  • Acoperiș cu două pante de 17°

Execuție și Control

  • Identificarea stratului bun de fundare de către geotehnician, înaintea turnării betonului

  • Lucrările se vor executa cu personal calificat și supraveghere de specialitate

  • Controlul calității conform Legii 10/1995 și normelor NTS și P.S.I.

  • Responsabil tehnic execuție + diriginte de șantier autorizat

  • Respectarea programului pentru controlul calității lucrărilor

Documentația Proiect

  • Borderou piese scrise și desenate

  • Memoriu tehnic rezistență

  • Breviar de calcul

  • Program control calitate lucrări

  • Planuri infrastructură și suprastructură detaliate

Contact

Ai un proiect în plan? Hai să discutăm!
Completează formularul de mai jos și un membru al echipei noastre te va contacta în cel mai scurt timp.

Întrebări frecvente

Ce înseamnă serviciile de proiectare structură de rezistență?

Serviciile de proiectare structură de rezistență se referă la procesul tehnic prin care se determină și se dimensionează elementele de structură ale unei clădiri (fundații, stâlpi, grinzi, planșee etc.) pentru a rezista în condiții de siguranță la toate încărcările (greutate proprie, vânt, zăpadă, cutremur). Aceste servicii sunt esențiale pentru orice tip de construcție, asigurând durabilitatea și stabilitatea în timp.

O proiectare corectă a structurii de rezistență asigură stabilitatea și siguranța construcției în fața solicitărilor mecanice și naturale (cutremure, vânt, zăpadă). O proiectare neconformă poate duce la costuri suplimentare, întârzieri în execuție sau chiar la probleme grave în utilizarea clădirii. De aceea, colaborarea cu o firmă de proiectare autorizată și cu experiență este esențială.

Etapele unui proiect de structură includ:

  1. Analiza documentației arhitecturale și studiului geotehnic;
  2. Modelarea structurală în softuri de specialitate;
  3. Calculul și dimensionarea elementelor structurale;
  4. Elaborarea planurilor și detaliilor de execuție (DTAC + PTh);
  5. Asistență tehnică pe parcursul execuției lucrărilor.

Durata realizării unui proiect depinde de dimensiunea și complexitatea construcției. Pentru o casă unifamilială, proiectul poate fi gata în 7–14 zile lucrătoare. Pentru proiecte mai mari, pot fi necesare 3–6 săptămâni. Termenul exact se stabilește în funcție de documentația disponibilă și de solicitările clientului.

Consultanța tehnică în faza de execuție a structurii de rezistență este esențială pentru a asigura conformitatea lucrărilor cu proiectul și standardele de calitate. Prezența inginerilor specializați permite verificarea modului în care sunt aplicate soluțiile structurale, corectarea eventualelor neconformități și adaptarea detaliilor tehnice în cazul apariției unor situații neprevăzute pe șantier. Astfel, se reduce riscul de erori, se optimizează execuția și se garantează siguranța și durabilitatea structurii.