Casă Unifamilială P+E

Proiect complex de construire locuință unifamilială P+Demisol, piscină exterioară și împrejmuire teren în municipiul Oradea.

Group 75199

Oradea, Bihor

Group 75202

Construcție Civile – Rezidențiale

Group 75201

2022-2024

Detalii Proiect

Adresă Proiect

Mun. Oradea, jud. Bihor

Descriere Generală

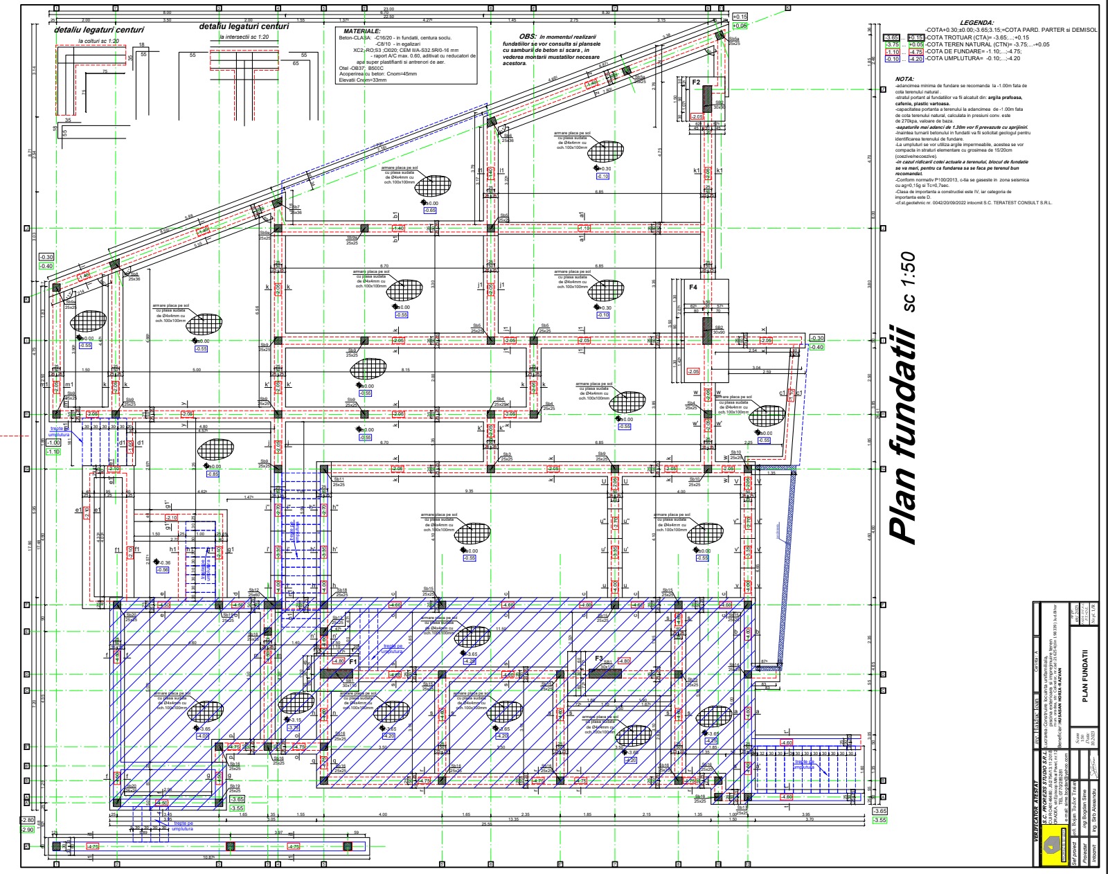
Locuința va avea regimul de înălțime demisol + parter. Structura de rezistență este realizată din zidărie cu blocuri ceramice de 25 cm, confinată cu sâmburi și centuri din beton armat, planșeu din beton armat peste demisol și parter, scară pe umplutură și acoperiș tip terasă. Piscina exterioară și împrejmuirea terenului sunt incluse în ansamblul de lucrări.

Caracteristici Seismice

Conform P100/2014, construcția este plasată în zona seismică cu ag=0.15g și Tc=0.7s. Clasa de importanță: IV. Categoria de importanță: D.

Echipa Proiect

Proiectant:

PROREZIS STUDIO

Arhitect:

Atelier Stoua

Verificator:

ing. I. Haiduc

Studiu Geotehnic

Număr studiu:

0042/20.09.2022

Executant:

S.C. TERATEST CONSULT S.R.L.

Capacitate portantă:

270 kPa

Adâncime fundare:

-1.00 m

Fundații

  • Fundații continue cu centură soclu din beton armat

  • Legături prin grinzi de fundare și centuri

  • Strat de pietriș compactat (15 cm) pentru ruperea capilarității

  • Trotuar de protecție min. 100 cm pe perimetru

Suprastructură

  • Zidărie din blocuri ceramice cu goluri verticale (25 cm)

  • Confinare cu sâmburi și centuri din beton armat

  • Planșee din beton armat peste demisol și parter

  • Scări pe umplutură

  • Piscină exterioară cu pereți din beton armat

  • Împrejmuire teren – gard structură beton armat

Element Clasa Beton Oțel Armare Caracteristici
Egalizare
C8/10
Strat suport fundații
Fundații
C16/20
OB37
Impermeabilitate P4
Suprastructură
C20/25
OB37, B500C
XC1, XC2, -RO, S3, Cl020

Observații: CEM II/A-S32.5R/0-16 mm, raport A/C max. 0.60, aditivat cu superplastifianți și antrenori de aer.

Normative Aplicabile

  • P100-1/2013 – Cod de proiectare seismică

  • NP112 – „Fundații”, EC7

  • CP012-2009 – „Cod de proiectare a betonului”

  • STAS 3300/2/85 – Capacitate portantă teren

Reglementări

  • Legea 10/1995 – Calitatea în construcții

  • Norme de protecție a muncii

  • Norme P.S.I. specifice

  • Program control execuție lucrări

Atenție Specială

Înaintea turnării betonului în fundații, beneficiarul va solicita geotehnicianului identificarea terenului bun de fundare.

Cerințe Execuție​

  • Personal calificat și certificat

  • Responsabil tehnic execuție autorizat

  • Diriginte de șantier autorizat

  • Respectarea normelor NTS în vigoare

  • Tehnologie de execuție obișnuită

Documentația Proiect

Piese Scrise:

  • Borderou – Foaie semnături

  • Referat

  • Memoriu tehnic rezistență

  • Breviar de calcul

  • Program control execuție lucrări

Piese Desenate:

  • Plan fundații și detalii de structură

  • Planuri cofraj planșee (demisol, parter)

  • Detalii armare centuri, grinzi și planșee

  • Poziționare stâlpi, sâmburi și pergolă metalică

  • Detalii structură gard împrejmuire

Contact

Ai un proiect în plan? Hai să discutăm!
Completează formularul de mai jos și un membru al echipei noastre te va contacta în cel mai scurt timp.

Întrebări frecvente

Ce înseamnă serviciile de proiectare structură de rezistență?

Serviciile de proiectare structură de rezistență se referă la procesul tehnic prin care se determină și se dimensionează elementele de structură ale unei clădiri (fundații, stâlpi, grinzi, planșee etc.) pentru a rezista în condiții de siguranță la toate încărcările (greutate proprie, vânt, zăpadă, cutremur). Aceste servicii sunt esențiale pentru orice tip de construcție, asigurând durabilitatea și stabilitatea în timp.

O proiectare corectă a structurii de rezistență asigură stabilitatea și siguranța construcției în fața solicitărilor mecanice și naturale (cutremure, vânt, zăpadă). O proiectare neconformă poate duce la costuri suplimentare, întârzieri în execuție sau chiar la probleme grave în utilizarea clădirii. De aceea, colaborarea cu o firmă de proiectare autorizată și cu experiență este esențială.

Etapele unui proiect de structură includ:

  1. Analiza documentației arhitecturale și studiului geotehnic;
  2. Modelarea structurală în softuri de specialitate;
  3. Calculul și dimensionarea elementelor structurale;
  4. Elaborarea planurilor și detaliilor de execuție (DTAC + PTh);
  5. Asistență tehnică pe parcursul execuției lucrărilor.

Durata realizării unui proiect depinde de dimensiunea și complexitatea construcției. Pentru o casă unifamilială, proiectul poate fi gata în 7–14 zile lucrătoare. Pentru proiecte mai mari, pot fi necesare 3–6 săptămâni. Termenul exact se stabilește în funcție de documentația disponibilă și de solicitările clientului.

Consultanța tehnică în faza de execuție a structurii de rezistență este esențială pentru a asigura conformitatea lucrărilor cu proiectul și standardele de calitate. Prezența inginerilor specializați permite verificarea modului în care sunt aplicate soluțiile structurale, corectarea eventualelor neconformități și adaptarea detaliilor tehnice în cazul apariției unor situații neprevăzute pe șantier. Astfel, se reduce riscul de erori, se optimizează execuția și se garantează siguranța și durabilitatea structurii.